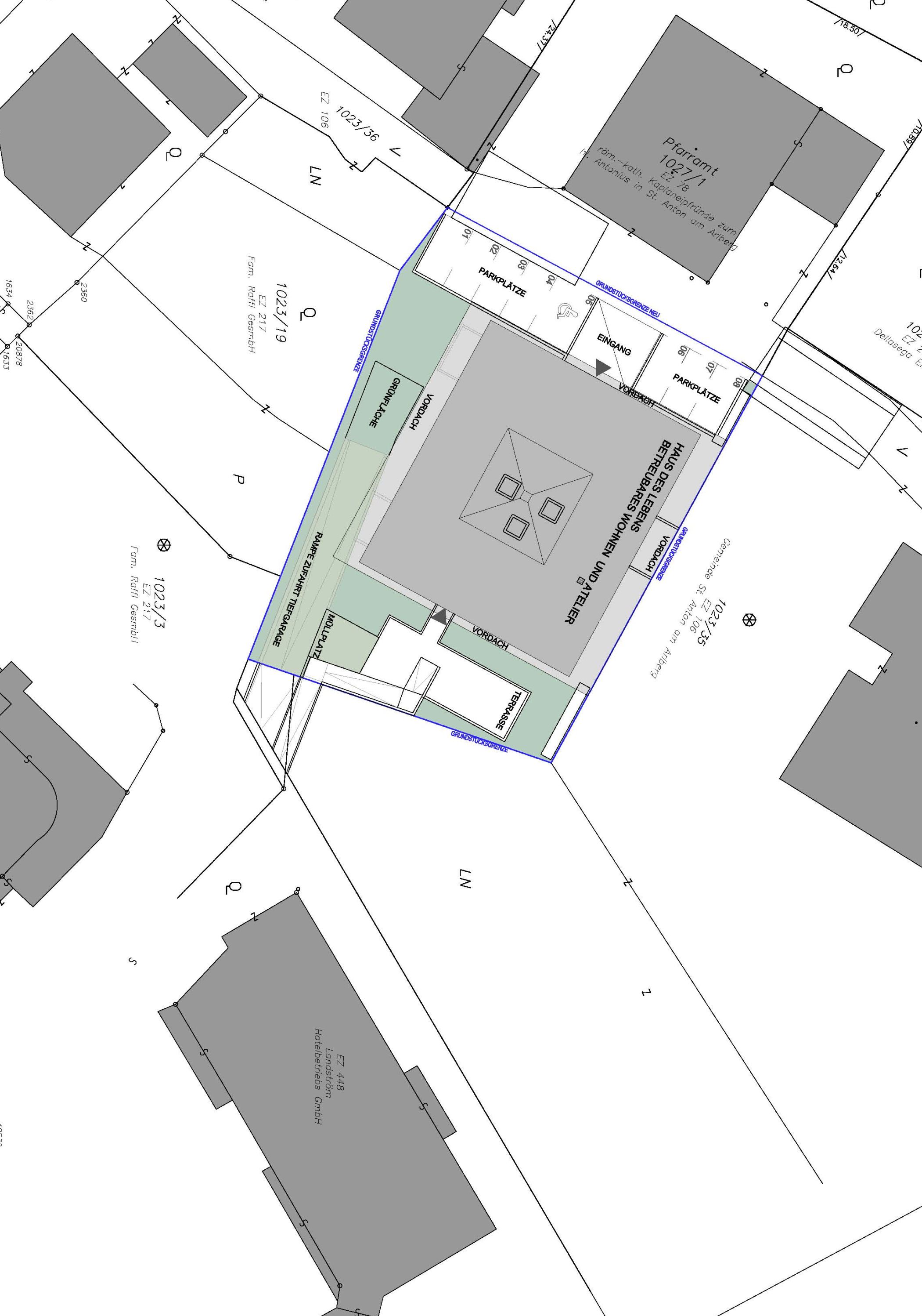
Haus des Lebens
Galerie
Konzept
- Initiative
- helle und benutzerfreundliche Wohneinheiten, Gemeinschaftsräume, in welchen die Bewohner einander treffen oder Besuche empfangen können
- Architektur
- In die 1-2 Zimmerwohnungen gelangen die Bewohner_innen über das große und helle Foyer, ein klares, einfaches Erschließungssystem, völlig barrierefrei führt in die Wohnungen, welche selbstverständlich mit viel Tageslicht und je einem privaten Freiraum ausgestattet sind.
- Technologie
- .... die Benutzer_innen sollen sich geschützt und begleitet fühlen
Info
| Kategorie | Wohnbau |
|---|---|
| Ort | St. Anton am Arlberg |
| Auftraggeber | Neue Heimat Tirol NHT |
| Zeitraum | 2015–2017 |
| Art | direkt |
| Status | realisiert |
| Copyright | driendl*architects ZT GmbH |
| Bilder | driendl*architects, NHT/Alexander Pauli |
Pläne
Medien
- PDF erstellen
- Projekt teilen